ID объекта : 23571
Тип: Элитка
Этаж: 13/14
Цена: $1 500
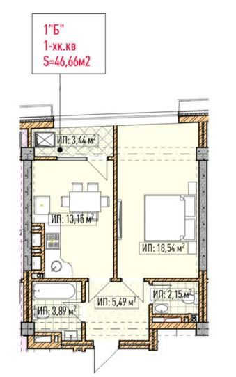
Размер объекта: 46.66 м2
Комнат: 1
Cостояние: Сдан ПСО
Коммуникации:
Газ;
Адрес:
Район: Сухэ-Батора / Токомбаева
Описание
Срочно продается 1 комнатная квартира в ЖК "Нью йорк сити"
от застройщика "Элит Хаус"
📌Район: Сухэ Батора / Магистраль
ПСО СДАН! 🔥
▪площадь 46, 66м2
▪этаж 13 из 14(+тех.этаж)🔥
▪все коммуникации центральные, отопление газовое
▪Развитая инфраструктура, включая рядом расположенные торговые центры, детские сады, школы и многое другое.
🔥цена: 1500$ 🔥🔥🔥
По вопросам обращайтесь: 0707-88-30-88 Бегайым
Агентство недвижимости Дипломат
Дипломат
ID: 23571


